register | confirm account | forgot password
Jason Thomas BCom
Royal Lepage Summit Realty
2611 Ellwood Dr S.W., Edmonton, Alberta
P: 780.499.5696
F: 780.431.1600
Email

Edmonton Homes For Sale

For more information on this Edmonton area home for sale or any other please contact me.

Courtesy of Royal Lepage Arteam Realty.
Data was last updated 2025-06-25 at 20:18:11 GMT
$524,900

8761 5 Avenue   Edmonton, Alberta

MLS®: E4479086
URL:    
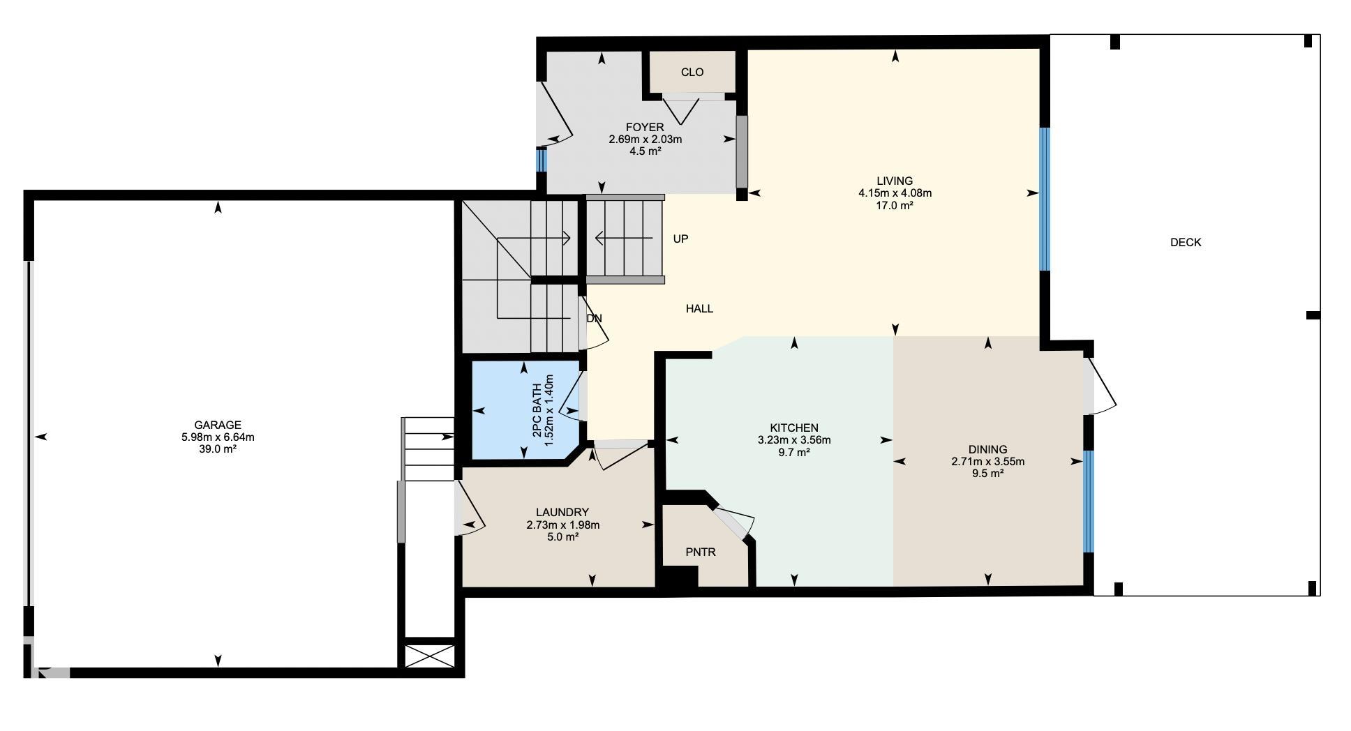
Landmark-built | Rosewood Floor Plan | Cul de sac Location | Family-friendly Ellerslie. This 1,762 sq.ft, 4 bed/3.5 bath home has been lovingly maintained by its original owners. The open-concept main floor overlooks the sunny SE-facing backyard & its one-of-a-kind PERMITTED SHOP - (220V/heated/insulated/sky-lights). The oak kitchen features updated appliances & spacious pantry (all closets have MDF organizers). This AWARD-WINNING floor plan was one the builder's most popular, with a large bonus room over the garage (ft. 9' ceilings & gas fireplace) & 3 spacious bedrooms incl. the primary suite w. 4PC ensuite. The FULLY FINISHED basement houses a 4th bedroom + 3PC bathroom. Outside you'll find mature trees  & an impressive 12' x 26' deck with arbor. The WIRED playhouse (w. skylights) is a charming bonus! Upgrades include: roof(2021), HWT(2020), furnace motor(2025), upgraded insulation. This property is close to the Henday, Gateway BLVD & amenities such as Save On Foods & tons of shopping/restaurants.
Landmark-built | Rosewood Floor Plan | Cul de sac Location | Family-friendly Ellerslie. This 1,762 sq.ft, 4 bed/3.5 bath home has been lovingly maintained by its original owners. The open-concept main floor overlooks the sunny SE-facing backyard & its one-of-a-kind PERMITTED SHOP - (220V/heated/insulated/sky-lights). The oak kitchen features updated appliances & spacious pantry (all closets have MDF organizers). This AWARD-WINNING floor plan was one the builder's most popular, with a large bonus room over the garage (ft. 9' ceilings & gas fireplace) & 3 spacious bedrooms incl. the primary suite w. 4PC ensuite. The FULLY FINISHED basement houses a 4th bedroom + 3PC bathroom. Outside you'll find mature trees & an impressive 12' x 26' deck with arbor. The WIRED playhouse (w. skylights) is a charming bonus! Upgrades include: roof(2021), HWT(2020), furnace motor(2025), upgraded insulation. This property is close to the Henday, Gateway BLVD & amenities such as Save On Foods & tons of shopping/restaurants.

Listing Information

Prop. Type:
Detached Single Family
Property Style:
2 Storey
Status:
Active
City:
Edmonton
MLS® Number:
E4479086
Bedrooms:
4
Neighbourhood:
Ellerslie
Area:
Edmonton
Province:
Alberta
Listing Price:
$524,900

General Information

Year Built:
2002
Total Square Feet:
1762ft2

Additional Information

Basement Dev:
Full, Finished
Parking:
Double Garage Attached

VIP-Only Information

Sign-Up or Log-in to view full listing details:
Sign-Up / Log In
This property is listed by Royal Lepage Arteam Realty and provided here courtesy of Jason Thomas BCom. For more information or to schedule a viewing please contact Jason Thomas BCom.
Jason Thomas BCom
Royal Lepage Summit Realty
Phone: 780.499.5696
Inquire Via Email
Data is deemed reliable but is not guaranteed accurate by the REALTORS® Association of Edmonton.
Home Evaluation Button
Button advertising your home evaluation feature
Home Evaluation
MLS® Search Button
Button advertising your MLS® Search page
Map-based MLS® Search
Photo and business card details widget
Jason Thomas BCom
Agent Photo
TelephoneOffice Phone:
780.499.5696
TelephoneFax:
780.431.1600
Email MeEmail:
Data last Updated: 2025-06-25 at 20:18:11 GMT America/Edmonton
This site's content is the responsibility of Jason Thomas BCom, licensed REALTOR® in the Province of Alberta.
The trademarks REALTOR®, REALTORS®, and the REALTOR® logo are controlled by The Canadian Real Estate Association (CREA) and identify real estate professionals who are members of CREA. Used under license.
The trademarks MLS®, Multiple Listing Service®, and the associated logos are owned by The Canadian Real Estate Association (CREA) and identify the quality of services provided by real estate professionals who are members of CREA. Used under license.

© 2026, All Rights Reserved | Privacy Policy | Mobile Site | REALTOR® Websites by RealPageMaker