register | confirm account | forgot password
Jason Thomas BCom
Royal Lepage Summit Realty
2611 Ellwood Dr S.W., Edmonton, Alberta
P: 780.499.5696
F: 780.431.1600
Email

Edmonton Homes For Sale

For more information on this Edmonton area home for sale or any other please contact me.

Courtesy of Royal Lepage Noralta Real Estate.
Data was last updated 2025-06-25 at 20:18:11 GMT
$399,900

510 37 Street   Edmonton, Alberta

MLS®: E4473309
URL:    
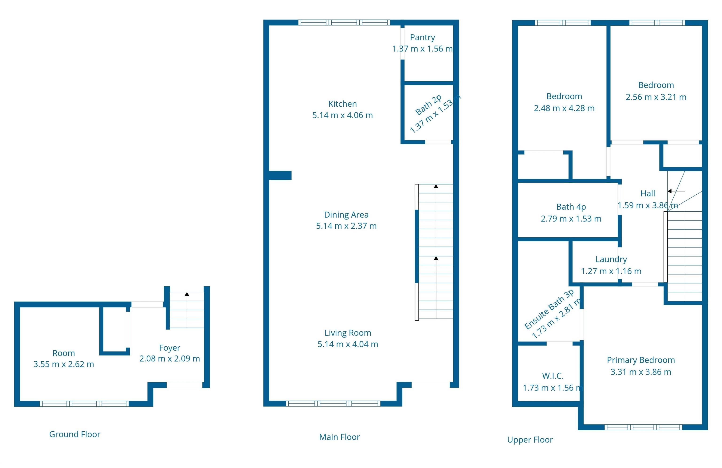
Welcome to this stunning, built by CANTIRO, nearly new 3-story townhome in The Hills at Charlesworth, one of Southeast Edmonton's most sought-after communities, offering over 1580 sq.ft. of thoughtfully designed living space with absolutely NO CONDO FEES! Built in 2023, this home is perfect for growing families, featuring a bright, open layout with 3 spacious bedrooms, 2.5 baths, a versatile main floor space ideal for a small home office, and a balcony equipped with a convenient gas line for summer grilling. You'll love the convenience of the attached 2-car garage paired with a massive driveway providing ample extra parking. Nestled right next to the community park in a fully developed neighborhood, this location is unbeatable. Enjoy having three neighborhood plazas nearby for all your daily necessities, plus incredibly easy access to major highways for a quick commute. This turnkey property offers the perfect blend of modern comfort, space, and a vibrant community lifestyle.
Welcome to this stunning, built by CANTIRO, nearly new 3-story townhome in The Hills at Charlesworth, one of Southeast Edmonton's most sought-after communities, offering over 1580 sq.ft. of thoughtfully designed living space with absolutely NO CONDO FEES! Built in 2023, this home is perfect for growing families, featuring a bright, open layout with 3 spacious bedrooms, 2.5 baths, a versatile main floor space ideal for a small home office, and a balcony equipped with a convenient gas line for summer grilling. You'll love the convenience of the attached 2-car garage paired with a massive driveway providing ample extra parking. Nestled right next to the community park in a fully developed neighborhood, this location is unbeatable. Enjoy having three neighborhood plazas nearby for all your daily necessities, plus incredibly easy access to major highways for a quick commute. This turnkey property offers the perfect blend of modern comfort, space, and a vibrant community lifestyle.

Listing Information

Prop. Type:
Residential Attached
Property Style:
3 Storey
Status:
Active
Condo/HOA Fee:
$210.00
City:
Edmonton
MLS® Number:
E4473309
Bedrooms:
3
Neighbourhood:
Charlesworth
Area:
Edmonton
Province:
Alberta
Listing Price:
$399,900

General Information

Year Built:
2023
Total Square Feet:
1582ft2

Additional Information

Basement Dev:
None, No Basement
Parking:
Double Garage Attached

VIP-Only Information

Sign-Up or Log-in to view full listing details:
Sign-Up / Log In
This property is listed by Royal Lepage Noralta Real Estate and provided here courtesy of Jason Thomas BCom. For more information or to schedule a viewing please contact Jason Thomas BCom.
Jason Thomas BCom
Royal Lepage Summit Realty
Phone: 780.499.5696
Inquire Via Email
Data is deemed reliable but is not guaranteed accurate by the REALTORS® Association of Edmonton.
Home Evaluation Button
Button advertising your home evaluation feature
Home Evaluation
MLS® Search Button
Button advertising your MLS® Search page
Map-based MLS® Search
Photo and business card details widget
Jason Thomas BCom
Agent Photo
TelephoneOffice Phone:
780.499.5696
TelephoneFax:
780.431.1600
Email MeEmail:
Data last Updated: 2025-06-25 at 20:18:11 GMT America/Edmonton
This site's content is the responsibility of Jason Thomas BCom, licensed REALTOR® in the Province of Alberta.
The trademarks REALTOR®, REALTORS®, and the REALTOR® logo are controlled by The Canadian Real Estate Association (CREA) and identify real estate professionals who are members of CREA. Used under license.
The trademarks MLS®, Multiple Listing Service®, and the associated logos are owned by The Canadian Real Estate Association (CREA) and identify the quality of services provided by real estate professionals who are members of CREA. Used under license.

© 2026, All Rights Reserved | Privacy Policy | Mobile Site | REALTOR® Websites by RealPageMaker