register | confirm account | forgot password
Jason Thomas BCom
Royal Lepage Summit Realty
2611 Ellwood Dr S.W., Edmonton, Alberta
P: 780.499.5696
F: 780.431.1600
Email

Edmonton Homes For Sale

For more information on this Edmonton area home for sale or any other please contact me.

Courtesy of Century 21 Leading.
Data was last updated 2025-06-25 at 20:18:11 GMT
$325,000

2021 GRANTHAM Court   Edmonton, Alberta

MLS®: E4459730
URL:    
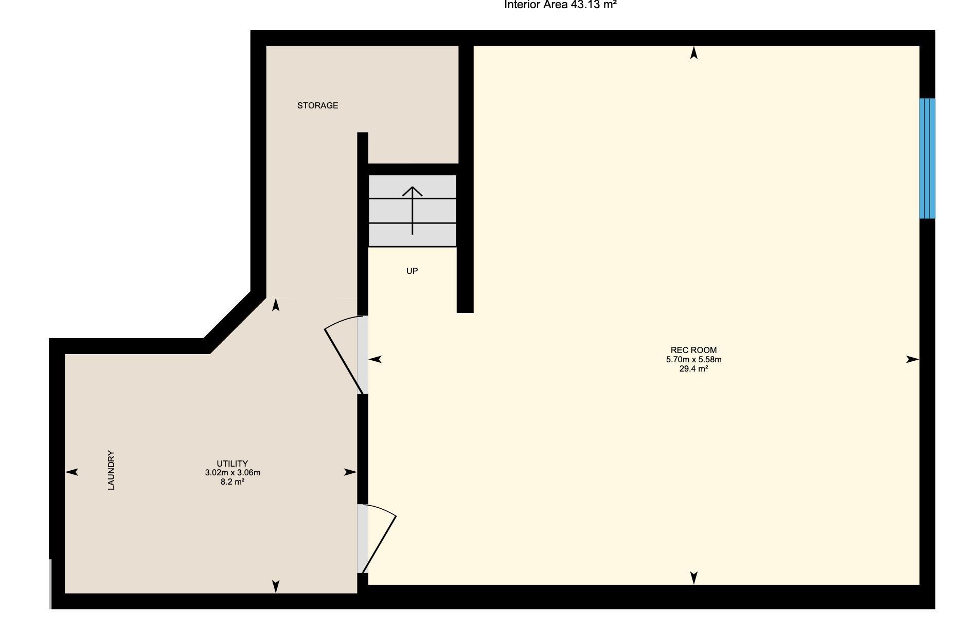
Welcome to this charming duplex condo in Summerhill Lane, Edmonton! Offering 2 spacious bedrooms and 2.5 baths, this home is designed for comfort and convenience. The open main floor features a bright living area, functional kitchen, and dining space with easy access to the backyard. Upstairs, both bedrooms are generously sized, each with ample closet space. The developed basement adds extra living potential?perfect for a family room, office, or gym. Newer furnace. A single attached garage provides secure parking and storage. Enjoy a private, fully fenced backyard?perfect for relaxing, gardening, or summer BBQs. Ideally located near schools, parks, shopping, and transit, this home combines low-maintenance living with the feel of a single-family property. A great opportunity for first-time buyers, downsizers, or investors! Complex had shingles done in 2023/2024. Photos have been virtually staged.
Welcome to this charming duplex condo in Summerhill Lane, Edmonton! Offering 2 spacious bedrooms and 2.5 baths, this home is designed for comfort and convenience. The open main floor features a bright living area, functional kitchen, and dining space with easy access to the backyard. Upstairs, both bedrooms are generously sized, each with ample closet space. The developed basement adds extra living potential?perfect for a family room, office, or gym. Newer furnace. A single attached garage provides secure parking and storage. Enjoy a private, fully fenced backyard?perfect for relaxing, gardening, or summer BBQs. Ideally located near schools, parks, shopping, and transit, this home combines low-maintenance living with the feel of a single-family property. A great opportunity for first-time buyers, downsizers, or investors! Complex had shingles done in 2023/2024. Photos have been virtually staged.

Listing Information

Prop. Type:
Duplex
Property Style:
2 Storey
Status:
Active
Condo/HOA Fee:
$63.00
City:
Edmonton
MLS® Number:
E4459730
Bedrooms:
2
Neighbourhood:
Glastonbury
Area:
Edmonton
Province:
Alberta
Listing Price:
$325,000

General Information

Year Built:
2002
Total Square Feet:
1298ft2

Additional Information

Basement Dev:
Full, Finished
Parking:
Single Garage Attached

VIP-Only Information

Sign-Up or Log-in to view full listing details:
Sign-Up / Log In
This property is listed by Century 21 Leading and provided here courtesy of Jason Thomas BCom. For more information or to schedule a viewing please contact Jason Thomas BCom.
Jason Thomas BCom
Royal Lepage Summit Realty
Phone: 780.499.5696
Inquire Via Email
Data is deemed reliable but is not guaranteed accurate by the REALTORS® Association of Edmonton.
Home Evaluation Button
Button advertising your home evaluation feature
Home Evaluation
MLS® Search Button
Button advertising your MLS® Search page
Map-based MLS® Search
Photo and business card details widget
Jason Thomas BCom
Agent Photo
TelephoneOffice Phone:
780.499.5696
TelephoneFax:
780.431.1600
Email MeEmail:
Data last Updated: 2025-06-25 at 20:18:11 GMT America/Edmonton
This site's content is the responsibility of Jason Thomas BCom, licensed REALTOR® in the Province of Alberta.
The trademarks REALTOR®, REALTORS®, and the REALTOR® logo are controlled by The Canadian Real Estate Association (CREA) and identify real estate professionals who are members of CREA. Used under license.
The trademarks MLS®, Multiple Listing Service®, and the associated logos are owned by The Canadian Real Estate Association (CREA) and identify the quality of services provided by real estate professionals who are members of CREA. Used under license.

© 2025, All Rights Reserved | Privacy Policy | Mobile Site | REALTOR® Websites by RealPageMaker